звоните нам Пн-Пт с 9 до 19
Каталог

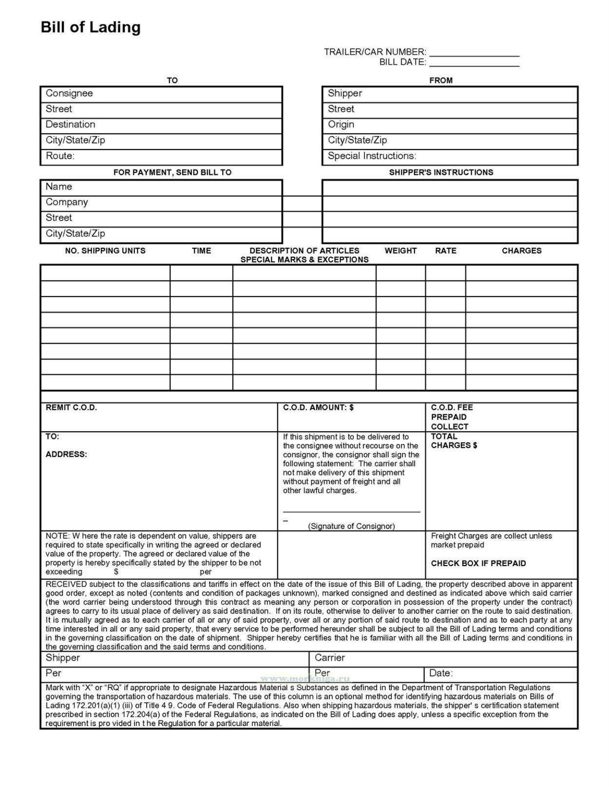
Европейский линейный контейнерный коносамент (в системе DRS)

  • Европейский линейный контейнерный коносамент (в системе DRS)
Артикул: 00813212
в желания В наличии
Издательство: Типография (все книги издательства)
Место издания: Москва
Год: 2010
Формат: А4 (210х297 мм) вертикальный
Страниц: 1
20 P
-
+
С этим товаром покупают

Европейский линейный контейнейнерный коносамент
По существующим правилам, после приема груза к перевозке морским транспортом перевозчик обязан выдать грузоотправителю коносамент (по-английски «bill of lading», в переписке обычно пользуются сокращением “B/L”). Коносамент удостоверяет наличие между сторонами договора о перевозке и конкретизирует его условия. Коносамент является товаросопроводительным и товарораспорядительным документом (удостоверяет право собственности на отгруженный товар). После доставки в порт назначения перевозчик обязан выдать груз законному держателю коносамента.

Здесь Вы можете оставить свой отзыв

Чтобы оставить отзыв на товар Вам необходимо войти или зарегистрироваться